Kiln Project
A considered renovation including a front facade upgrade and rear extension to create a new master suite with integrated walk-in robe. The design was resolved through detailed layout, joinery and material decisions, and documented for clarity on scope and cost prior to construction.
Scope
Interior architecture
Spatial planning and layout
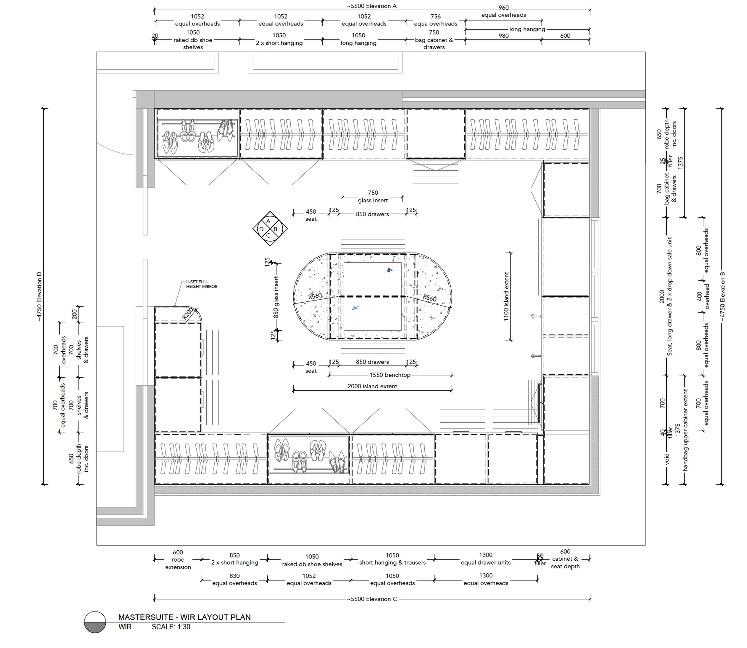
Joinery design and documentation
Material selection and coordination
Lighting integration (including skylights)
Design documentation for pricing
Design Outcome
Selected Design Documentation
What was achieved
Front facade redesign with new material application to create a balanced, contemporary exterior
Rear extension designed to accommodate a new master suite with integrated walk-in robe and retreat
Replacement of windows and doors to the front and selected rear areas to improve light and connection
Skylights introduced to enhance natural light within the extended spaces
Full interior design and joinery resolved for the master suite and walk-in robe, including layout, storage and material direction
